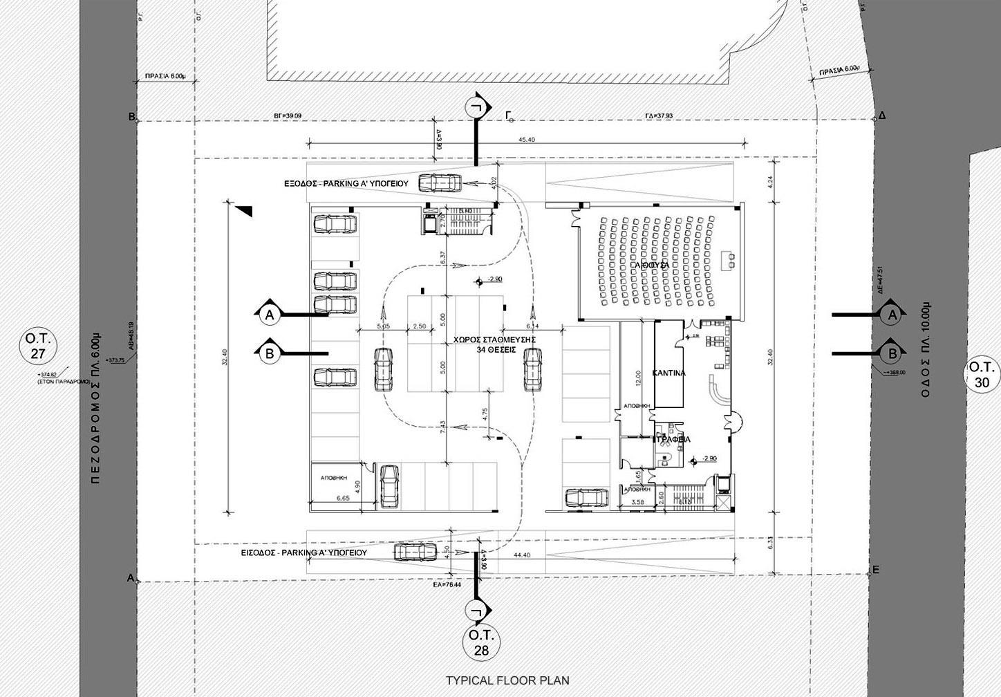
Κέντρο Health Care στην περιοχή της Αθήνας
Εργασίες
Θέση: Αθήνα
Προμελέτη: 2005
Η κεντρική ιδέα του σχεδιασμού είναι οι μεγάλοι, καθαροί όγκοι που δημιουργούν έντονη προοπτική. Με αυτή τη σύνθεση εξασφαλίζεται η διαμπερής θέα και η εστίαση προς αυτό, ελκύοντας την προσοχή εν ώρα οδήγησης, αφού το οικόπεδο βρίσκεται στην Εθνική Οδό. Τα υλικά που επιλέγονται στις όψεις είναι η πέτρα και το γυαλί, ενώ στο σκέπαστρο έχουν τοποθετηθεί διάφανα φωτοβολταϊκά, εξασφαλίζοντας καλύτερη ενεργειακή συμπεριφορά στο κτίριο.
