Skip to main content

Τράπεζα Ηπείρου

H συνεταιριστική Τράπεζα Ηπείρου λόγω της εισόδου νέων επενδυτών και του προγράμματος εξάπλωσης της σε όλη την ελληνική επικράτεια αναγκάστηκε να ανανεωσει την υπάρχουσα εταιρική ταυτότητα και επίσης το εταιρικό διακριτικό σήμα της (Rebranding).

Κατόπιν ενός κλειστού διαγωνισμού μας επέλεξε για να αναλάβουμε τον σχεδιασμο της νέας εταιρικής ταυτότητας των καταστημάτων και του εταιρικού σώματος.

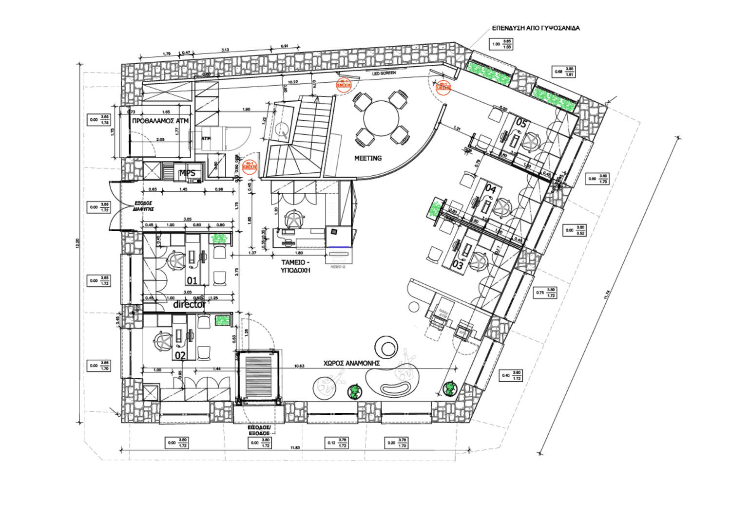
Το νέο κατάστημα στην Άρτα θα εγκατασταθεί σε ένα διατηρητέο πέτρινο εμπορικό κτίριο των αρχών του προηγούμενου αιώνα.

Λόγω έντονης παρουσίας της λιθόκτιστης περιμετρικής τοιχοποιιας εσωτερικά και εξωτερικά και του μεγάλου ύψους του χωρου σχεδιαστηκαν μόνο οι απαραίτητοι χαμηλοί εσωτερικοι τοιχοι ώστε να διακρίνεται όλος ο ενιαίος χώρος. Κατόπιν μελέτης φωτισμού και ακουστικής αποφασίστηκε να κρεμαστουν από την οροφή στοιχεία φωτισμού και ηχοαπορροφησης.

Χρησιμοποιηθηκε ανοιχτή απόχρωση ξύλινης επένδυσης για τα διαχωριστικά , το ταμείο, τα ερμάρια και οι μεταλλικες κατασκευες θα είναι στην απόχρωση του χαλκού. Στην ενιαια γύψινη ψευδοροφή του χωρου κατασκευαστηκε, για το συγκεκριμένο κατάστημα μόνο, ένα καφασωτό με φωτισμό που να θυμίζει αφαιρετικά τις ηπειρώτικες οροφές. Τέλος ένα ελεύθερο γυάλινο κυρτό χωρισμα οριζει τον χώρο συνάντησης με τους πελάτες.